You have been wanting a garage for years. Why not build this year?
Generic selectors
Exact matches only
Search in title
Search in content
Post Type Selectors

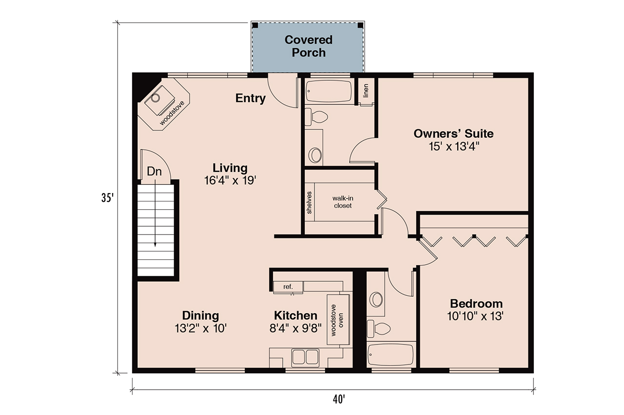
Plan 13-161

Plan Features

  • Garage Apartment Plans

Plan Details

Living sq ft 1162
Second Floor 1162
Bays 2
Levels 2
Width 40'
Depth 35'
Height 26'-6"
Exterior wall 2x6
Foundation Footing and Foundation Wall
Roof framing Roof Trusses
Roof pitch 6/12 Main Roof
Ceiling height 9-0 First Floor, 8-0 Second Floor
Choose a Plan Package(Required)
Plan Options
This field is hidden when viewing the form
- $25.00
Please enter a number greater than or equal to 0.
Subtotal: $0.00